Trên mảnh đất 2 mặt tiền rộng 72m2, ngôi nhà có tên Kai House hướng đến việc tối ưu hoá không gian, đặc biệt đề cao tính linh hoạt trong sử dụng và đưa sân vườn, cây xanh vào không gian sống. Không gian mở là ưu tiên cao nhất trong thiết kế ngôi nhà này.

Nằm ở khu đô thị mới của thành phố Hải Dương, ngôi nhà được thiết kế với hình dáng khác biệt hoàn toàn với những ngôi nhà cùng khu phố.

Lợi thế đặc biệt của ngôi nhà này đó là nằm ở ngay ngã 3 đường rộng thoáng.

Trên diện tích đất 72m2 ngôi nhà được thiết kế 3 tầng với sân vườn cây cối bao quanh.

Điểm lôi cuốn đặc biệt của công trình này đó là hai mặt tiền được thiết kế vô cùng độc đáo với gạch mộc và hệ lam gỗ chạy dọc không gian.

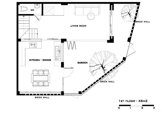
Khu đất rộng 72m2 nhưng tầng 1 của ngôi nhà chỉ xây 46m2, phần diện tích còn lại chủ nhà dành cho sân vườn và cây cối.

Không gian tầng 1 chủ nhà dành riêng cho phòng khách, phòng ăn và khu vực bếp. Nội thất bên trong hầu hết được sử dụng bằng gỗ mang lại không gian vừa gần gũi, thân thiện và ấm cúng.

Hệ cửa lớn trước nhà được thiết kế gấp dễ đóng mở mà không hề tốn diện tích ngôi nhà.

Thiết kế không gian hoàn toàn mở thông thoáng và linh hoạt là ưu tiên khi thiết kế công trình này.

Khu vườn rộng rãi, tách biệt khỏi ngôi nhà với đường lớn, do đó ngôi nhà giữ sự riêng tư và yên tĩnh.

Cây được tự nhiên đưa vào nhà như là một giải pháp làm mát và làm xanh cho không gian.

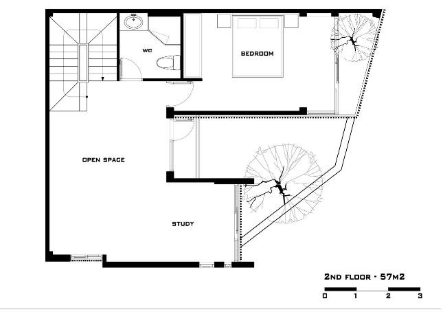
Vẫn với tiêu chí mở thông thoáng, tầng 2 ngôi nhà là không gian nghỉ ngơi, làm việc và thư giãn của gia chủ.

Nội thất được thiết kế đơn giản, gọn nhẹ nhưng luôn bảo đảm đầy đủ nhu cầu sinh hoạt cho cả gia đình.

Phòng ngủ thông thoáng với tầm nhìn mở ra bên ngoài tuyệt đẹp. Nội thất gỗ còn mang đến cảm giác ấm cúng và thân thiện cho không gian.

Thiết kế mở khiến tất cả mọi ngõ ngách trong ngôi nhà lúc nào cũng bừng sáng. Ngôi nhà này thực sự là một nơi ấm cúng, yên bình để nghỉ ngơi và thư giãn.

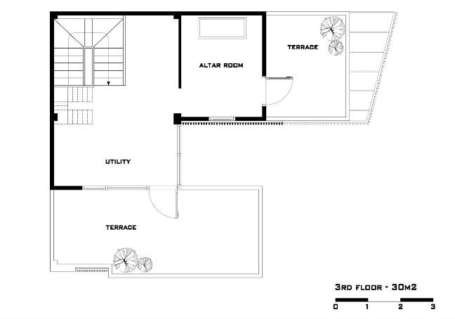
Cầu thang nhỏ dẫn lên tầng 3 ngôi nhà.


Một khoảng sân thượng lý tưởng thư giãn và ngắm nhìn thành phố từ trên cao.

Sơ đồ bố trí không gian tầng 1.

Sơ đồ bố trí không gian tầng 2.

Sơ đồ bố trí không gian tầng 3.
Theo Trí thức trẻ/Archdaily
Nguồn: cafef.vn
Ngôi nhà gạch mộc lạ mắt ở Hải Dương xuất hiện ấn tượng trên báo ngoại
Reviewed by Bất động sản
on
tháng 12 08, 2017
Rating:
Không có nhận xét nào: