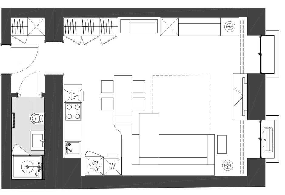
Trên diện tích chỉ vẻn vẹn 38m2 nhưng căn hộ nhỏ có đầy đủ các không gian chức năng thoáng rộng gồm: phòng khách, bếp, khu vực ăn uống, nghỉ ngơi và một nhà tắm hiện đại.
Các không gian chức năng được bố trí linh hoạt và vô cùng tiện dụng cho người sử dụng. Điểm ấn tượng đặc biệt trong tổ ấm này đó là hệ thống tủ âm tường cao sát trần. Nơi đây chứa đựng không chỉ giường ngủ, tủ đựng quần áo, tủ đựng đồ dùng mà còn cả góc làm việc thoải mái. Nhờ chiếc tủ đa năng này mà ngôi nhà lúc nào cũng thoáng sáng và rộng rãi vô cùng.

Không ai nghĩ rằng căn hộ này lại có diện tích chỉ 38m2. Mọi không gian trong nhà được bố trí linh hoạt tận dụng tối đa ánh sáng tự nhiên.

Mới bước chân vào căn hộ có lẽ nhiều người sẽ không khỏi tò mò vì ngôi nhà hoàn toàn không nhìn thấy khu vực nghỉ ngơi mặc dù có đầy đủ bếp, bàn ăn và nơi tiếp khách.

Và thật bất ngờ khi mọi bí mật lại nằm bên trong chiếc tủ trắng muốt, phẳng lỳ hệt như bức tường này.

Chiếc tủ thông minh này được thiết kế dọc bức tường nhà với điểm nhấn là góc làm việc được trang trí bởi đèn điện và lớp phủ giả gỗ cùng những dòng chữ vô cùng lạ mắt.

Chiếc tủ được phân làm vô số ngăn lớn nhỏ thỏa mãn đầy đủ nhu cầu cất trữ đồ đạc cho chủ nhà.

Và đặc biệt nơi đây cũng là nơi ẩn chứa một chiếc giường ngủ đa năng có thể dễ dàng ngã ra hay gấp gọn khi không sử dụng.

Không gian nơi tiếp khách được bài trí đơn giản với kệ sách báo nhỏ, nến thơm và lọ hoa.

Mọi thứ rất đơn giản nhưng được sắp xếp và bố trí gọn gàng, ngăn nắp.

Cạnh ghế sofa là một chiếc tủ gỗ nhỏ để đồ và cũng là nơi để trang trí cho căn hộ.

Vì diện tích nhỏ nên mọi thứ nội thất trong nhà đều rất giản tiện và tiết kiệm diện tích đến mức tối đa.

Nội thất gỗ được sử dụng khá nhiều trong nhà mang đến không gian thân thiện mà ấm cúng.

Nhà tắm và vệ sinh tuy nhỏ nhưng được trang bị nhiều nội thất hiện đại.

Toàn bộ bức tường một bên được lắp kính giúp góc nhỏ này như được nhân đôi diện tích.

Sơ đồ bố trí toàn bộ căn hộ.
Theo Trí thức trẻ/Lakbermagazin
Không có nhận xét nào: